當前位置:鄭州盛禾環保科技有限公司 > 技術中心 > 正文
中久移動洗車機設計說明
當今市場上已經存在了大量種類,式樣的洗車機。但是很多洗車機存在著許多弊端,比如家用的小型洗車機,需要耗費大量的體力,并且對車表進行潔凈處理,往往洗完車,車表仍然有很多污漬,不能夠達到目的;隧道洗車機往往又是占用很大的面積,增加大量的成本,同時又不能夠自由移動;所以中久對移動洗車機進行改進設計。
中久主要是將洗車機設計的更加人性化,更加實用化。不但要滿足顧客的各種洗車要求而且便利經營者的使用。
它的構思來自電動三輪快遞車,將快遞車設計成一個多功能的洗車機,這樣完成了一個移動洗車機的基本構思。
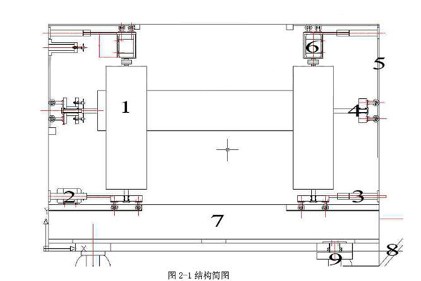
其結構簡圖如下所示:
下一篇:蒸汽洗車機的洗車方式上一篇: 了解業內三招,成功選上好的蒸汽清洗機!
技術中心
- 蒸汽洗車機清洗車輛發動機的效果...
- 蒸汽洗車機清洗效果好嗎?我們用事...
- 上門蒸汽洗車機選用燃氣加熱怎么...
- 為什么高壓蒸汽洗車機很受歡迎?...
- 掌握蒸汽洗車機正確的洗車方法省...
- 移動蒸汽洗車機生意好做嗎?多少錢...







